多伦多 六六网  www.66.ca

 找回密码
 立即注册

扫描二维码登录本站

搜索
查看: 3055|回复: 0

[经纪代理] OTTO Thornhill镇屋新盘!黄金住宅地段!!

[复制链接]

升级   40%

23

主题

23

帖子

320

积分

中级会员

Rank: 3Rank: 3

积分
320
发表于 2015-6-26 16:39:07 | 显示全部楼层 |阅读模式
OTTO Thornhill镇屋新盘!黄金住宅地段!!
2015-06-26    Henry Liao 加拿大注册房地产买卖经理人
康山(Thornhill )
OTTO镇屋新盘火爆登场!

如果您对该项目感兴趣,请立即联系Henry Liao 647-2165698 索取详细价格表!

万锦康山OTTO Thornhill镇屋新盘项目由超过50年历史的老牌意大利建筑商CountryWide Homes 精心打造,位于Bayview Ave和John St 附近。此项目周边设施齐全,交通便利,学区良好,房价适中,社区安全,是最受欢的社区之一。价格从85万起,1886至3229尺不等,临John街单元更可做上居下铺使用。


项目地址:360 John Street, Thornhill
价格:87.5万到105万
管理费:80加元每月
开发商:Country Wide Homes


康山镇屋OTTO,首屈一指的现代都市住宅,在Bayview Ave / John St。黄金地段,绝对抢手!


该社区有4个特点:

1.设施齐全:

Thornhill购物广场,Thornlea社区中心,早教中心,湛山精舍,高尔夫球俱乐部就在对面。

2.学区好:
公立高中一所,公立小学二所,教会小学一所;Johnsview Village Public School 小学,学前班到8年级,在全安省3037所小学中排名第238,成绩很好;Thomlea Secondary School 高中以艺术,戏剧音乐,视觉艺术著名,科学和商课成绩也很好,升学率较高,口碑非常不俗。在全安省749所高中排名第119.



3.交通便利:
OTTO 项目周围生活交通便利: 社区在万锦市的南部,举步就是多伦多市和万锦中心Hwy 7 沿线;Bayview上的91路公交车直达Finch地铁站; 开车也很方便,404高速和407高速就在附近;离Hwy 7非常近,在Hwy 7沿线可以找到各种餐饮饭店和生活用品点,比如Home Depot, Walmart, Loblaws, Canadian Tires, Cineplex 等等。

4.房屋类型多样:
适合各类收入群体。住宅镇屋: 宽18尺有21种户型, 上居下铺镇屋: 宽20尺有7种户型.

如果您对该项目感兴趣,请联系您所熟悉的天合地产经纪或致电天合地产公司总机905-480-1011索取详细价格表!

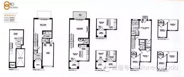
住宅镇屋: 宽18尺, 房型与户型图如下:



















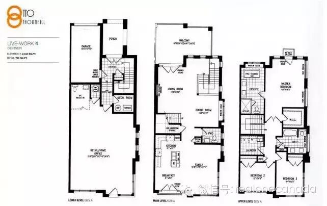
上居下铺镇屋, 宽20尺,房型与户型图如下:

















OTTO Thornhill镇屋楼盘102个单须质疑的黄金住宅地段。欢迎立即联系抢先预购!


索取详细价格表!如果您对该项目感兴趣,请立即联系Henry Liao 647-2165698















转载自天合地产




长按识别二维码加好友
微信号Henry200888

Henry Liao 加拿大注册房地产买卖经理人   Sales Rep. 房产楼花买卖
647-216-5698  
henry200888@gmail.com
www.torontocondohouse.ca
微信号Henry200888
Real One Realty Inc Brokerage
7225 Woodbine Ave Unit 1 Markham ON L3R 1A3


开心买房,开心卖房,开心贷款,开心租管,开心服务,专业全面!
(加拿大注册地产,贷款经纪 ,持牌水电技师) 选择Henry 就是选择省心,放心,开心!




阅读 7      

0 (1).jpg
回复

使用道具 举报

您需要登录后才可以回帖 登录 | 立即注册

本版积分规则

电话:647-830-8888|www.66.ca 多伦多六六网

GMT-5, 2025-12-19 10:17 PM , Processed in 0.070153 second(s), 30 queries .

Powered by Discuz! X3.4

Copyright © 2001-2020, Tencent Cloud.

快速回复 返回顶部 返回列表